Property Summary
The location is most convenient for comprehensive neighbourhood amenities, access into Preston City Centre and onto both the M6 and M55 motorways.
Full Details
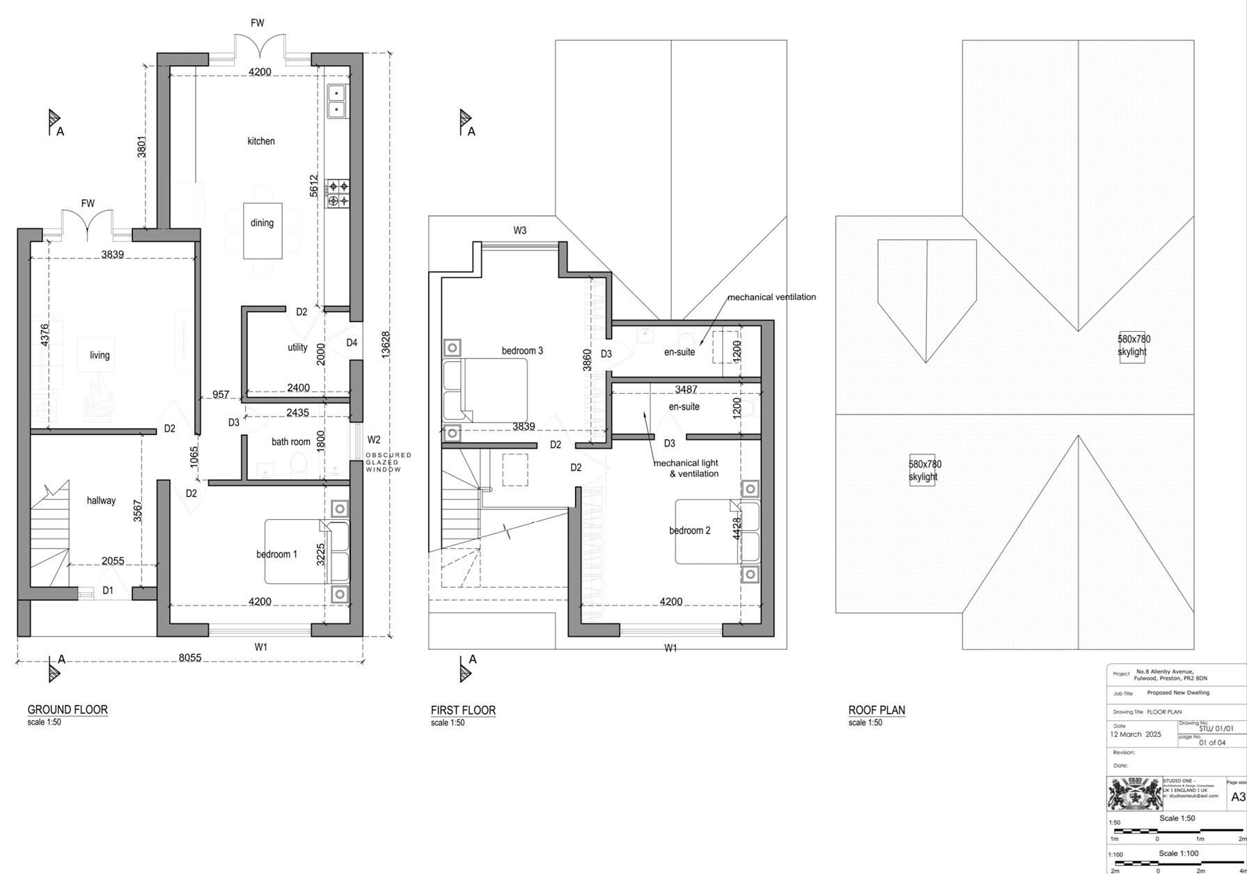
**APPROX 0.0635 ACRES OF LAND WITH PREVIOUS APPROVED PLANNING PERMISSION FOR A 3 BED DETACHED DORMER TO BE BUILT**
Set in a much sought after and established setting between individual residencies the land provides the opportunity of developing an exclusive and exciting project of individual high specification residence.
The location is most convenient for comprehensive neighbourhood amenities, access into Preston City Centre and onto both the M6 and M55 motorways.
Planning:
Full Planning Permission was granted on the 5th March 2026 by Preston City Council for a scheme of ONE detached dormer.
(App No. 06/2025/0626 ).
All enquirers into the planning permission must be done by the buyer through Preston Council.
Land like this one do not come to the market very often so call ahead to secure your space for a viewing.
For further information or to arrange a viewing, please call the team on
Please contact Kingswood.
Fulwood Office: 01772 717181
77 Watling Street Road, Fulwood, Preston, PR2 8EA
mail@kingswoodproperties.co.uk
Disclaimer:
These particulars, whilst believed to be correct, do not form any part of an offer or contract. Intending purchasers should not rely on them as statements or representation of fact. No person in this firm's employment has the authority to make or give any representation or warranty in respect of the property. All measurements quoted are approximate. Although these particulars are thought to be materially correct their accuracy cannot be guaranteed and they do not form part of any contract.























