Property Features
- Close To Schools And Motorways
- Detached
- 4 Bedrooms
- 2 Reception Rooms
- Luxury Modern Kitchen
- Front Garden
- Rear Garden
- En-Suite
- Prime Position
- Spacious and inviting
Property Summary
Full Details
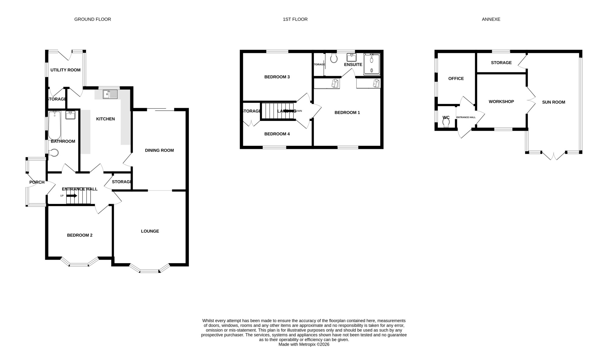
If you are looking for a family sized long term home in Fulwood suited to multi-generational living, this could be the perfect property for you. Detached with four bedrooms, an open plan lounge and dining room, a modern kitchen and a separate detached Annexe, it provides ample space for families of all ages and size. Call to arrange a viewing before it sells.
With a lovely lawned garden at the front and side, this property has so much kerb appeal and when you pull up outside and see it for the first time, you will be so pleased that you chose to view it and be excited about discovering what it offers internally. When you enter the property, you will be greeted by a bright hallway with stairs leading to the first floor. Leading off the hallway there is a great size open plan lounge and dining room with a bay window at the front and doors at the rear allowing natural light to flood in making both rooms feel light, spacious and welcoming. The layout of this floor flows and works perfectly with a kitchen leading off the dining room as well as the hallway. The kitchen is beautiful with imported high quality granite worktops and splashbacks and a range cooker which will be remaining in the property. There are built-in appliances including a dishwasher and a wine cooler. Leading off the kitchen there is a very useful utility room with space for a washing machine, tumble dryer and a fridge / freezer.
Also on this floor there is a bedroom and a family bathroom. The bedroom is at the front of the property and has a large bay window letting in natural light creating a light and welcoming room. The bathroom is an excellent size and comes with underfloor heating and a Jacuzzi bath.
After being impressed with what you have seen on the ground floor, when you climb the stairs and see what the first floor offers, you will be seeing yourself living here and be wanting even more to buy this property. On this floor there are three bedrooms providing ample space for families of all ages and size. The main bedroom is an excellent size large enough for a king size bed and has fitted wardrobes and a lovely en-suite leading off it. The second bedroom is a generous size double and the third bedroom is a very useful single.
Just when you are thinking that this property could not offer anymore space, when you go outside and see the detached Annexe you will be amazed. It is perfect for a number of different uses depending on your personal requirements. It can be used as extra living space with a bedroom and a lounge either for family members or guests or if you are wanting to work from home, it would be a brilliant workspace away from the main house so you can separate your work and home life.
The property sits on a very generous size plot. At the front and side of the property there is a lovely lawned garden giving the property kerb appeal as well as there being a driveway. At the rear there is a private low maintenance walled garden with artificial grass, a patio and a koi pond providing a beautiful outdoor space to enjoy and to entertain in.
Being located in Fulwood means that there are brilliant transport links, schools and amenities on the doorstep making the area very popular with family buyers. Royal Preston Hospital is a short drive away.
This is a freehold property.
EPC rating - D
Council tax band - E
It is incredibly rare that family sized properties like this come to the market for sale in this area and when they do there is a lot of interest in them. Call to arrange a viewing as soon as possible to avoid missing out on it.
Please contact Kingswood.
Fulwood Office:
01772 717181
77 Watling Street Road, Fulwood, Preston, PR2 8EA
mail@kingswoodproperties.co.uk
Disclaimer:
These particulars, whilst believed to be correct, do not form any part of an offer or contract. Intending purchasers should not rely on them as statements or representation of fact. No person in this firm's employment has the authority to make or give any representation or warranty in respect of the property. All measurements quoted are approximate. Although these particulars are thought to be materially correct their accuracy cannot be guaranteed and they do not form part of any contract.

































































