Property Features
- Development Opportunity
- Chain Free
- Ideal Investment Opportunity
- Shops And Amenities Nearby
- Close To Schools And Motorways
- Close To Public Transport
- Mid Terrace House
- 2 Bedrooms
- 2 Reception Rooms
- Original Features
Property Summary
Full Details
This spacious character packed terraced house in Fulwood is currently split into two one bedroom apartments with the potential to renovate into one large family property. It is a fantastic addition to a property investment portfolio or opportunity to create a long term family home. Call to arrange a viewing as soon as possible before it sells.
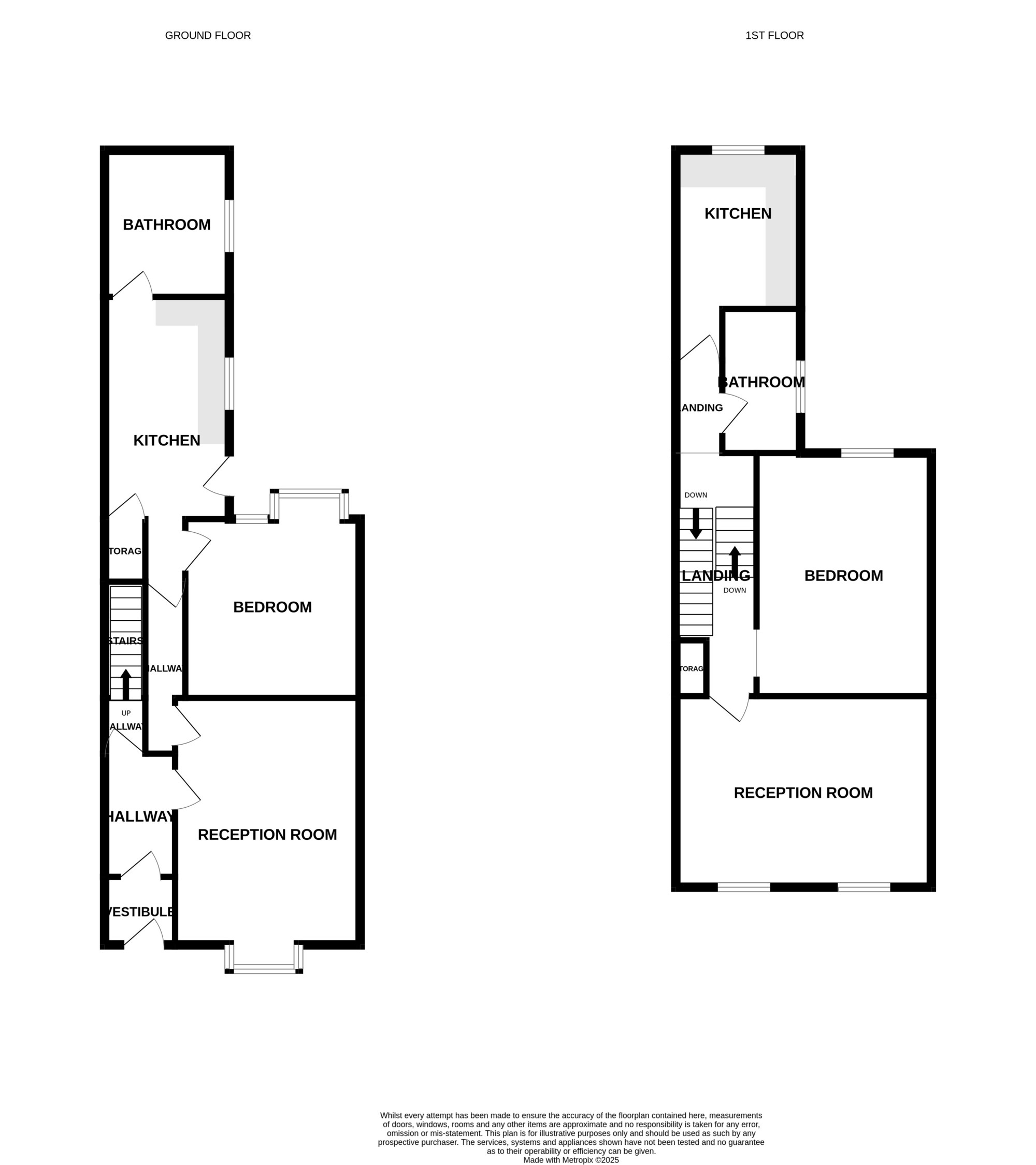
As soon as you enter this property and see the entrance hallway, you will immediately realise how much space that this property offers as well as the gorgeous character of it. The property is currently spilt into two apartments, one on the ground floor and the second one on the first floor. It can be kept like this to provide an excellent investment opportunity or can be converted into a single large family property.
On the ground floor there is an entrance hallway leading through to a reception room at the front of the property. The room is a very generous size and is so light as it benefits from a large window letting in natural light and is packed with lovely character features including a feature fireplace. Leading off the reception room there is an internal hallway with a bedroom and a bathroom leading off it. The bedroom is spacious and is as light as the reception room. The kitchen is an excellent size and has an entrance door leading to the rear yard. The yard is a good size providing outdoor space to enjoy and has the massive bonus of a garage. To finish off this floor, leading off the kitchen there is a generous size bathroom.
The first floor is just as spacious as the ground floor and currently contains another one bedroom apartment. When you climb the stairs and see this floor, you will immediately be struck by the amount of space on offer. There is a good size landing which is such a lovely feature of the property. At the front there is a great size reception room with two double glazed windows letting in so much natural light making the room feel really light and welcoming. There is a good size bedroom leading off the landing as well as a kitchen and bathroom.
Externally there is a rear yard providing outdoor space to enjoy and the property has the bonus of a good size garage. At the front there is on street parking and a front garden leading up to the property giving it kerb appeal.
The property is located in Fulwood meaning that there are excellent transport links including bus routes, schools, shops and amenities on the doorstep. The area is incredibly popular with a wide range of buyers as well as people wanting to rent.
This is a freehold property.
Council tax band - A
EPC rating - TBC
This spacious character property offers so many different options and there is going to be a lot of interest in it. Call to arrange a viewing as soon as possible before it sells.
Please contact Kingswood.
Fulwood Office:
01772 717181
77 Watling Street Road, Fulwood, Preston, PR2 8EA
mail@kingswoodproperties.co.uk
Disclaimer:
These particulars, whilst believed to be correct, do not form any part of an offer or contract. Intending purchasers should not rely on them as statements or representation of fact. No person in this firm's employment has the authority to make or give any representation or warranty in respect of the property. All measurements quoted are approximate. Although these particulars are thought to be materially correct their accuracy cannot be guaranteed and they do not form part of any contract.











































