Property Features
- Priced To Sell
- Shops And Amenities Nearby
- Close To Schools And Motorways
- Close To Public Transport
- Semi Detached
- Bungalow
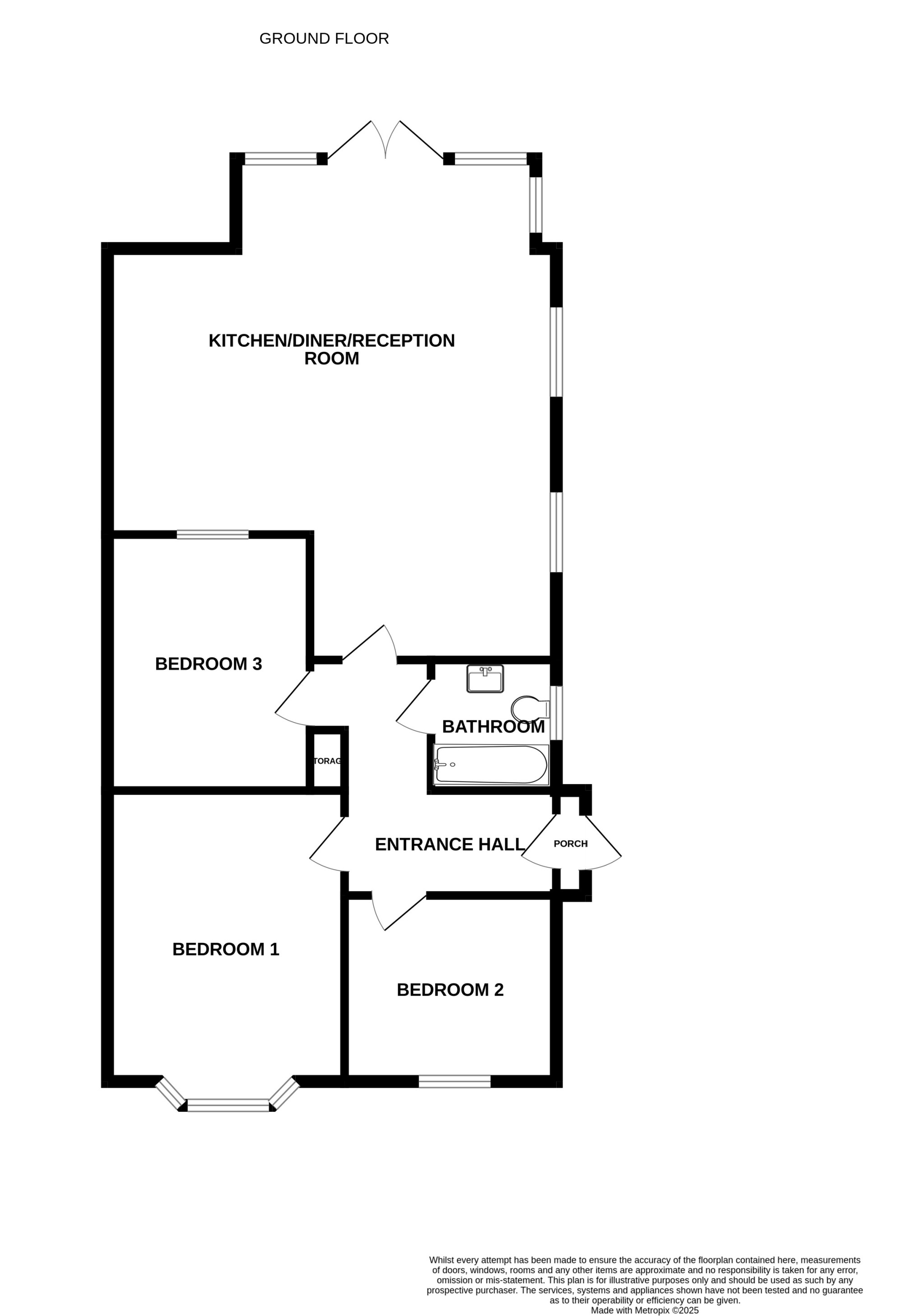
- 3 Bedrooms
- 1 Reception Room
- Rear Garden
- Driveway
Property Summary
Full Details
It is very rare that bungalows come to the market for sale and when they do they sell quickly. Nestled in a lovely quiet road off Fulwood Hall Lane in the heart of Fulwood, the location of this particular bungalow could not be better. With three bedrooms and a great size reception / dining area / kitchen, it offers ample space internally as well as externally. Call to book a viewing as soon as possible to avoid missing out on it.
With a lovely front garden and driveway, this bungalow has plenty of kerb appeal and when you pull up outside, you will be so pleased that you chose to view it and be excited about discovering what it offers internally. As soon as you enter the property, you will immediately be struck by the amount of space on offer. It has three bedrooms, a family bathroom and a reception / dining area / kitchen.
The property has been extended at the rear to create a fantastic size living, dining and cooking area ideal for modern family living. The room has three double glazed windows as well as double doors allowing so much natural light to flood in making it feel light, welcoming and spacious. There are three bedrooms creating ample space for families of all ages and size. Two of the bedrooms are good size doubles especially the main bedroom and the third bedroom is a good size single which can be used as an extra bedroom or an office depending on your personal requirements.
The property sits on a very generous size plot. At the front there is a garden and a driveway giving the property kerb appeal as well as providing plenty of off road parking. At the rear there is a garden with a paved patio area and a garage.
The property is located on a lovely quiet road off Fulwood Hall Lane. Being located in the heart of Fulwood means that there are superb transport links including bus routes, excellent schools as well as shops and amenities on the doorstep. The area is incredibly popular with buyers and whenever we bring properties to the market in the area, there is a lot of interest in them and they sell quickly.
This is a freehold property.
Council tax band - C
EPC rating - TBC
Please contact Kingswood.
Fulwood Office:
01772 717181
77 Watling Street Road, Fulwood, Preston, PR2 8EA
mail@kingswoodproperties.co.uk
Disclaimer:
These particulars, whilst believed to be correct, do not form any part of an offer or contract. Intending purchasers should not rely on them as statements or representation of fact. No person in this firm's employment has the authority to make or give any representation or warranty in respect of the property. All measurements quoted are approximate. Although these particulars are thought to be materially correct their accuracy cannot be guaranteed and they do not form part of any contract.





















