Property Features
- Chain Free
- Ideal Investment Opportunity
- Shops And Amenities Nearby
- Close To Public Transport
- Mid Terrace House
- 2 Bedrooms
- 1 Reception Room
- Double Glazing
- Rear Yard
- Prime Investment Opportunity
Property Summary
Full Details
ATTENTION INVESTORS!! This two bedroom terraced house with tenants in situ and currently producing a gross annual income of £13000, is a great buy to let investment. Located in an area of Preston where the rental demand is high, it will not take long to sell. Call to arrange a viewing to avoid missing out on it.
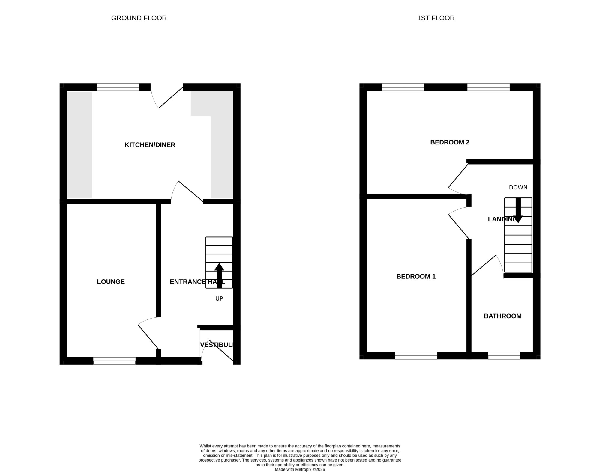
Internally on the ground floor there is an entrance vestibule leading through to the hallway, a lounge and a kitchen / diner. The lounge at the front of the property is a good size and the kitchen / diner at the rear is an excellent size.
On the first floor there are two double bedrooms and a bathroom providing enough space for two people to live comfortably.
Externally there is a yard at the rear and at the front there is on street parking.
The property is located in an area of Preston where the rental demand is high. On the doorstep there are excellent transport links including bus routes, shops and amenities.
The property currently has 2 tenants in situ paying £125 per week each producing a gross annual rental income of £13000.
The current owner pays electricity and gas up to £90 per month for each (£180 per month in total) and the internet (£32 per month)
This is a freehold property.
EPC rating - D
Council tax band - A
We are expecting a lot of interest in this excellent buy to let investment opportunity so call to arrange a viewing as soon as possible.
Please contact Kingswood.
Fulwood Office:
01772 717181
77 Watling Street Road, Fulwood, Preston, PR2 8EA
mail@kingswoodproperties.co.uk
Disclaimer:
These particulars, whilst believed to be correct, do not form any part of an offer or contract. Intending purchasers should not rely on them as statements or representation of fact. No person in this firm's employment has the authority to make or give any representation or warranty in respect of the property. All measurements quoted are approximate. Although these particulars are thought to be materially correct their accuracy cannot be guaranteed and they do not form part of any contract.









