Property Features
- For Sale
- Business & Building For Sale
- Mixed Use
- Commercial Property
- Established Business And Clients
- Currently Trading
- Busy Parade Location
- Great Potential
- Shutters
- Parking
- Viewing is a Must
Property Summary
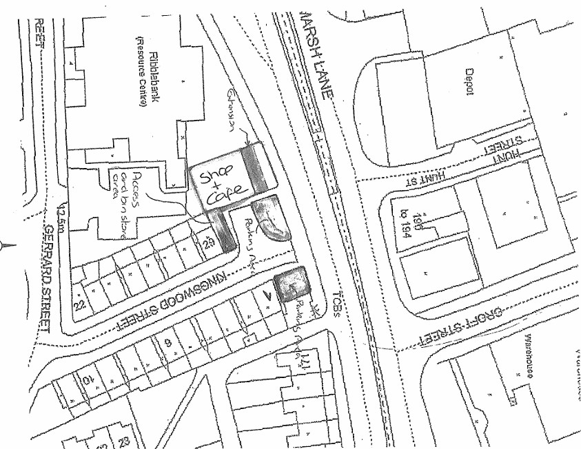
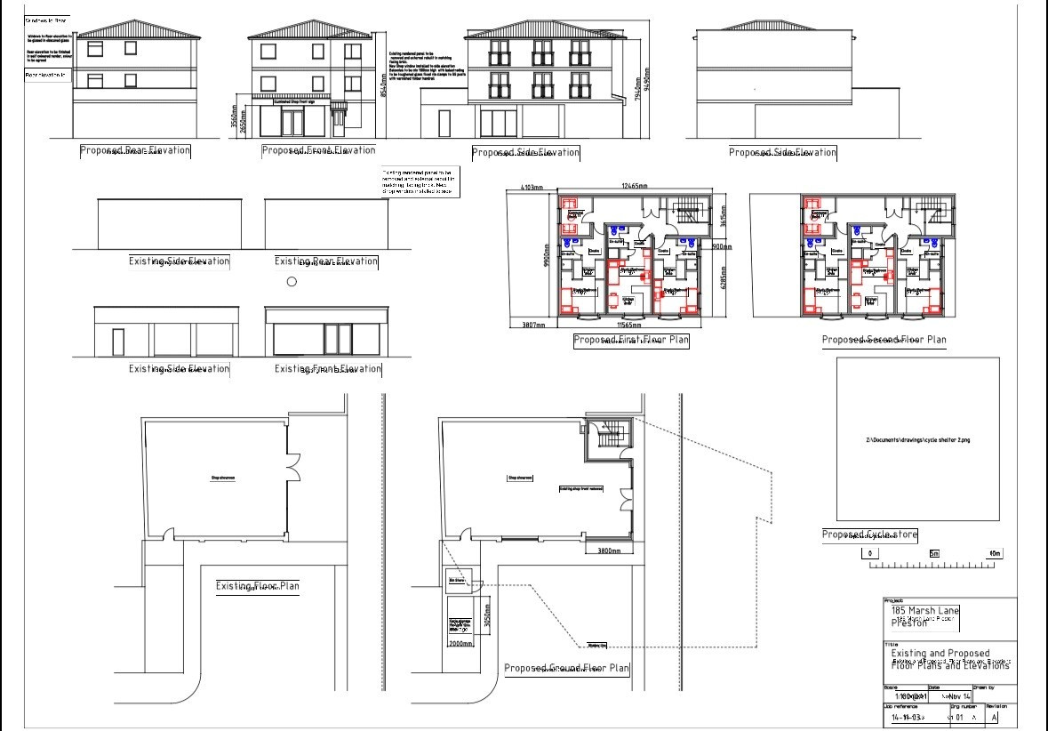
Kingswood are delighted to bring you this well established business and premisses in a Prime location in Preston. Currently operating as a corner shop and sandwich bar.
Got a property to sell or let?
Get a property valuation from Kingswood Estate Agents Preston
FREE VALUATION





































